Ai298- Appartamento con piscina L'antica Fornace.

Ai298- Appartamento con piscina L'antica Fornace.

Descrizione

Ai298- Appartamento con piscina L'antica Fornace.
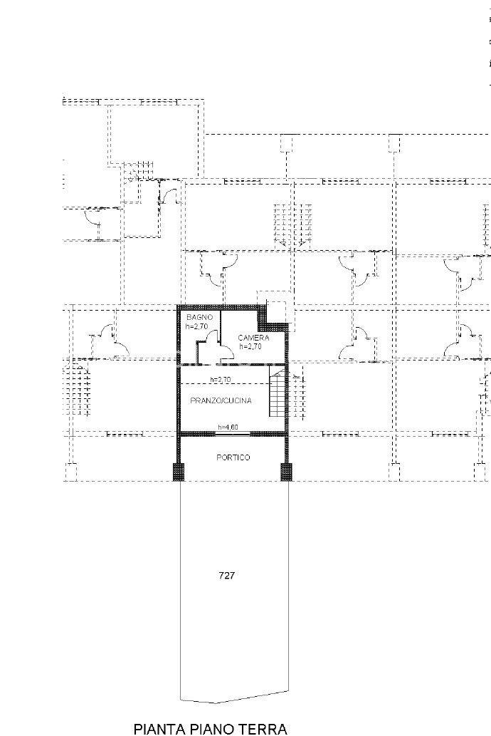
DESCRIZIONE: All'interno di un complesso totalmente ristrutturato suddiviso in appartamenti indipendenti con giardino e piscina. L'appartamento, di circa 74 mq, è composto da soggiorno con angolo cottura, camera matrimoniale e bagno al piano terra ed una camera matrimoniale al piano soppalco.
Completa la proprietà un giardino privato, posto auto e piscina di cui l'acquirente diventa co-proprietario. Area barbecue condominiale.
Il fabbricato di cui fa parte l'appartamento è stato costruito nel 2010 e si trova in perfette condizioni. Abitabile da subito.
UBICAZIONE: l'immobile che vi proponiamo si trova a Pozzuolo, a circa 8 km da Castiglione del Lago, dove possiamo trovare tutti i servizi quali supermercati, ufficio postale, banche, scuole, ambulatori medici e negozi vari, a circa 40 km da Perugia e a pochi minuti dal raccordo autostradale Perugia-Bettolle per il collegamento con l'autostrada A1. A pochi minuti si trova Cortona, importante cittadina d'interesse culturale, storico e turistico. In realtà Castiglione del Lago si trova in un'ottima posizione e ben collegata con le maggiori località del Centro-Italia come Arezzo, Siena, Firenze e Roma, anche via treno, grazie alla presenza della stazione ferroviaria e alla vicinanza con un altro importante snodo come Terontola-Cortona. Gli impianti sciistici del Monte Amiata distano circa 60 km mentre le spiagge del grossetano sono a poco più di 120 km.
Per ulteriori informazioni o altre soluzioni simili visita il nostro sito www.immobiliareilcastello.com o contattaci al numero 075.951347.
La nostra agenzia vanta un'esperienza ultra ventennale nel settore immobiliare e offre assistenza professionale accompagnandovi lungo tutto il percorso che porterà dalla scelta dell'immobile al preliminare fino all'atto di acquisto, garantendo la massima serietà e competenza.

Camere
2
Bagni
1
Mq
74

Ambienti

Soggiorno angolo cottura
Ripostigli 1
Giardino
Posto auto 1
Soppalco

Livelli & comfort

Livelli Piano terra , Primo piano
Riscaldamento autonomo
Accesso disabili
Animali ammessi
Ingresso indipendente
Numero accessi carrai 1
Numero portoni 1

Contattaci